20,800 Sf Industrial Space

6166 S. Sayre Avenue | Chicago, IL 60638

$10 SF/yr (NNN)

Lease Rate

Property Details

Lease Rate:$10 SF/yr (NNN)
Year Built:1980
Property Type:Industrial
Building Size:27,200 SF

Property Description

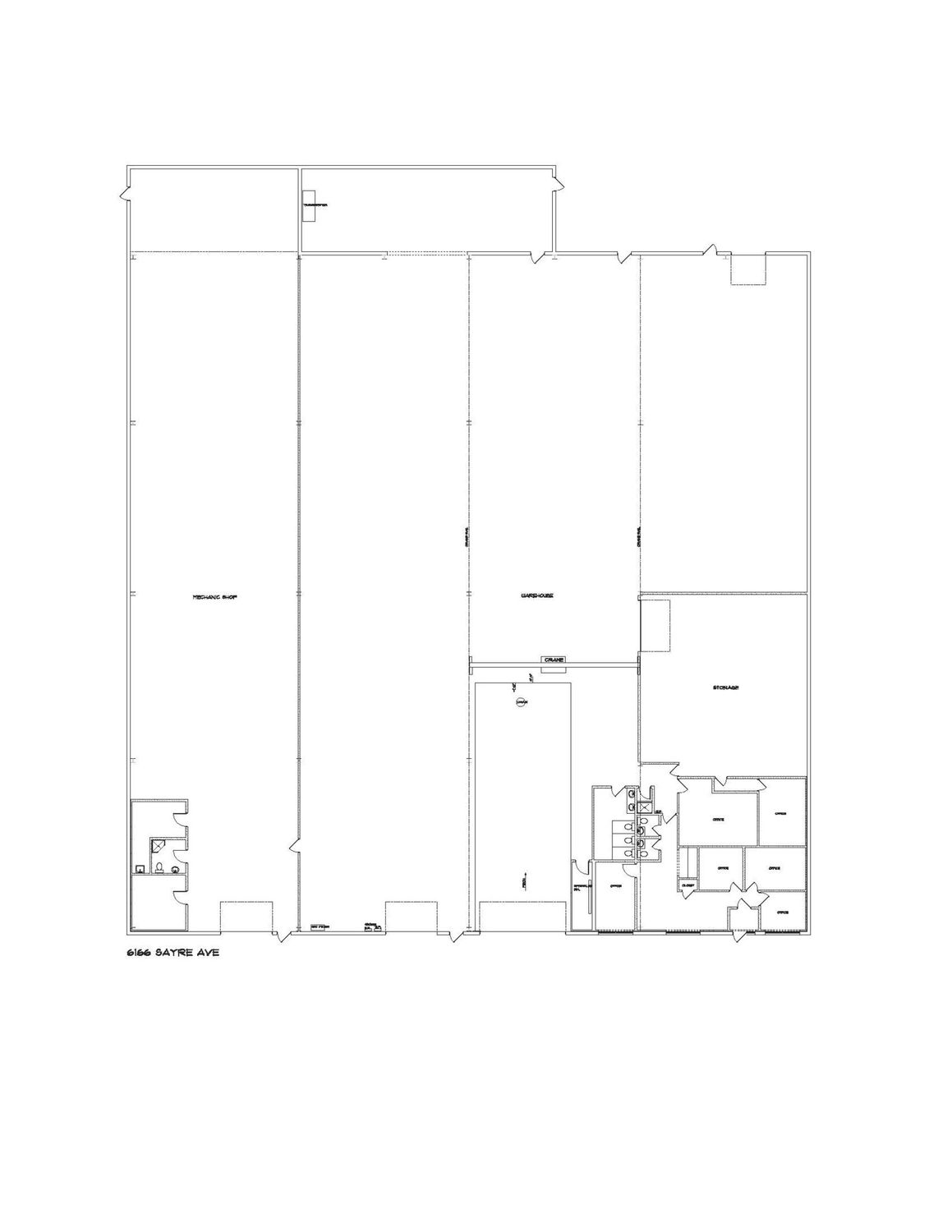
Approximately 20,800 SF warehouse available for lease at the corner of 62nd Street and Sayre Avenue,
The building features approximately 1,600 SF of newly built office space, with the balance dedicated to functional warehouse operations.
Video link - https://youtube.com/shorts/TkKept5TshE?si=Fso-J5unMYCcd3bS

Location Description

The site is positioned at the corner of 62nd Street and Sayre Avenue in Chicago’s well‑established Clearing Industrial Area, a submarket recognized for its strong industrial base and strategic proximity to major transportation corridors. Located within the sought‑after Harlem Corridor, this property offers a rare combination of accessibility, functionality, and visibility—making it an excellent fit for companies seeking to optimize their operational footprint in the Chicago metropolitan area.

Highlights

  • Key Building Features:
  • One drive‑in overhead door
  • Double‑wide recessed loading dock
  • 16–20 ft clear ceiling height
  • Two 3‑ton overhead cranes
  • Ample on‑site parking
  • Excellent truck maneuverability
  • Easy street access for deliveries and pick‑ups
  • 5 minutes to Midway International Airport
  • 7 minutes to I‑55
  • Convenient access to I‑294, I‑90/94,
  • https://youtube.com/shorts/TkKept5TshE?si=Fso-J5unMYCcd3bS

Map

Request More Info

We'll never share your email with anyone else.

Active

Name Space Type Space Size Lease Rate Lease Term
6166 S Sayre - 20,800 SF $10 SF/yr Negotiable
6166 S Sayre
Name 6166 S Sayre
Space Type -
Space Size 20,800 SF
Lease Rate $10 SF/yr
Lease Term Negotiable
1 Miles 3 Miles 5 Miles
Total households 8,448 38,579 136,228
Total population 23,696 109,607 408,056
Population white 43.2% 46.6% 42.4%
Population black 4.5% 3.5% 6.4%
Population hispanic 59.9% 55.6% 56.1%
Population asian 0.9% 1.6% 2.0%
Population pacific islander 0.0% 0.0% 0.0%
Population american indian 1.9% 2.2% 2.5%
Population other 28.6% 26.4% 27.5%
Persons per household 2.8 2.8 3
Average household income $95,975 $95,841 $98,322
Average house value $294,562 $288,894 $304,940
Average age 40 40 39
Average age male 39 39 38
Average age female 41 41 40
Demographics data derived from AlphaMap