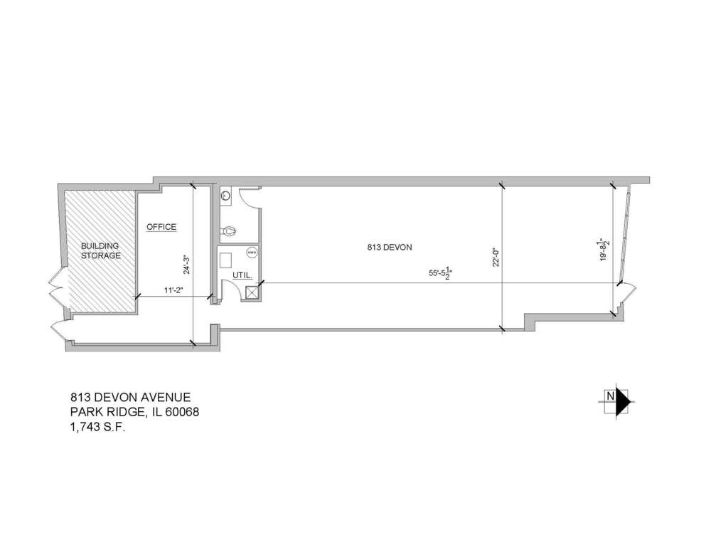
Overview
Explore the exceptional leasing opportunity at 807-817 Devon, Park Ridge, IL. This property boasts versatile spaces perfectly suited for your business needs. With Suite 813 Devon offering 1,950 SF that you'll find the ideal layout for your operations. The base rent of $23.50 per square foot, which includes base year stop for taxes, makes this property an attractive and cost-effective choice. Enjoy the convenience of daytime designated parking space in the rear and public parking available in multiple locations, ensuring easy access for both clients and employees. The presence of apartment residents above guarantees a steady flow of foot traffic, enhancing the visibility of your business.
Highlights
- Suites 813 Devon - 1,950 SF
- Base rent is $23.50 per square foot including base year stop for taxes
- Daytime designated parking space in the rear
- Public parking in front, also on the north side of Devon and on Talcott
- Apartment residents above creates more traffic for your business
Brokers

| Price | $23.50 SF/yr (MG) |
|---|---|
| Size | 1,950 SF |
| Property Type | Retail |
| Building Size | 20,860 SF |
Available Space (1,950 SF)
813 Devon
Ready for occupancy with high end finishes , four office's, Storage room, break room,private restroom
| Space Available | 1,950 SF |
|---|---|
| Space Type | Street Retail |
| Lease Rate | $23.50 SF/yr |
|---|---|
| Available | Immediately |
Photos
Floor Plan








